Sherburn Village
Park Road, Sherburn Village, County Durham, DH6 1EX.
Learn about our plans for our new housing development at Sherburn Village, Durham.
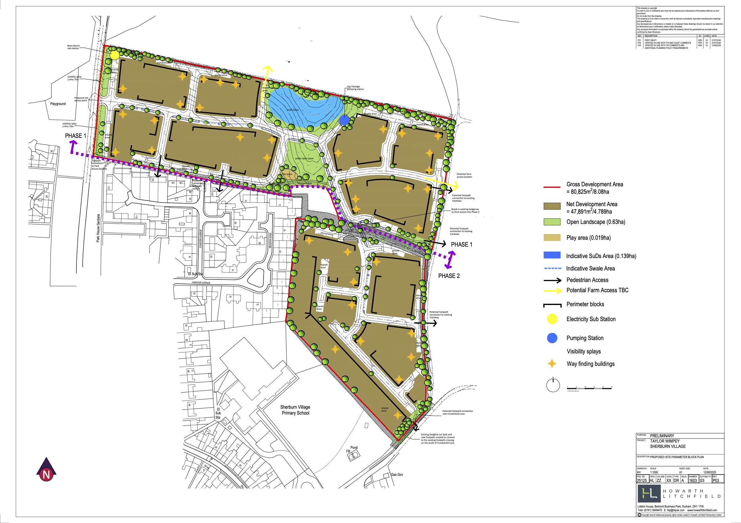
We are currently preparing a comprehensive planning application for the development of approximately 176 homes, ranging from two to five-bedroom homes. This development is proposed on land situated to the north and east of Meadow Edge, Sherburn Village.
Located to the north and east of Sherburn Village, the site offers excellent connectivity to local facilities in Sherburn Village and County facilities in Durham.
The housing development is complemented by thoughtfully designed open spaces within the site with existing landscaping retained and enhanced around the site. The proposal includes an access entrance from Park Road with priority pedestrian and cycle routes provided throughout the development, linking to all local facilities.
A copy of the consultation boards can be downloaded here.
Development Map
Masterplan
The site encompasses approximately 8.o8 hectares (gross) and is located to the north and east of Meadow Edge. The surrounding area includes arable farmland to the north and east of the site and residential dwellings and Sherburn Primary School to the south and west.
The development is envisioned as an exclusive neighbourhood, offering approximately 176 high-quality homes. Each home will feature dedicated parking, with additional visitor parking provided within the site. Inspired by and designed to complement the surrounding area, the development will include robust landscaping to soften the overall design, with a diverse range of green open spaces available throughout the site.
Homes propsed
housing options.
Street scenes
houses nearby.
About our proposals features
Amenities and facilities
History of the site
Open space
History of the site features
Connectivity
Getting around is simple due to good transport links, with some public transport services and easy access to the A1 from the site. For those who love the great outdoors, there are a variety of local walks.
Sherburn Village has a full range of local facilities and amenities within easy walking distance of the site. There is also plenty to do in nearby Durham, which boasts a diverse range of shops, sports centres, recreational activities, including bars, restaurants, and cinema.
Drainage
Ecology
Retaining and enhancing the natural environment is central to our approach in developing new projects. We are conducting extensive ecological surveys to identify any constraints within the site and to inform the proposed biodiversity strategy and landscape design.
Efforts will be made to retain key features where possible, and enhance with additional planting introduced to reinforce existing natural buffers. Our proposals include the creation of various functional ecological enhancements, such as new habitats, bat, bird, and bee bricks/boxes, and measures to promote pollinator-friendly environments.
Our approach features
Learn more
Why choose us?
We're one of the UK's largest homebuilders. Find out why to choose us for your new home.
Ways to buy
Help with buying your new home
Explore the ways we can help get your home buying journey moving.
Why choose us
Award winning homes
We're proud to have been awarded 5 stars for customer satisfaction by the Home Builders Federation.
