Learn more about our plans for our community at Heather Gardens
Reserved Matters permission for our fourth and fifth sub-phases (A3 & A4) at Hethersett North was granted on 11th February.
About the development
Overview
This website is designed to keep you up to date with any relevant information about our latest proposals and the new homes and community benefits due to be delivered at Hethersett North.
The outline planning permission established the principle of a residential-led, mixed-use development with a masterplan comprising up to 1196 homes and additional uses. These include land for a new primary school and secondary school extension site, local services and community facilities, sports pitches, extensive green infrastructure, including formal and informal recreational space, as well as areas of play.
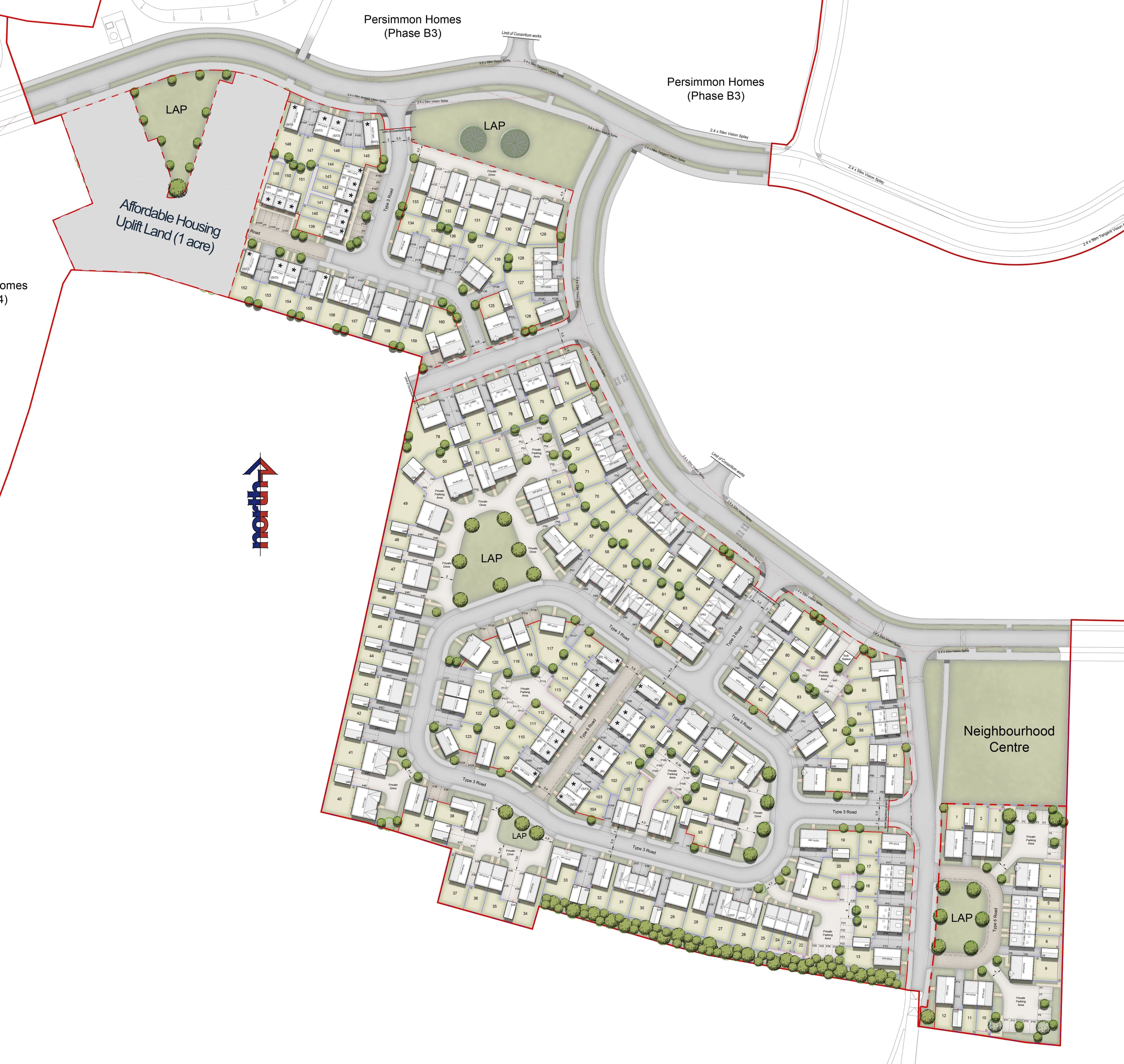
Phases A3 & A4 will include 200 new homes in total, with 40 of these properties being allocated as affordable homes for local people in housing need.
These are the final two sub-phases to be delivered by Taylor Wimpey as part of the original outline planning consent and are located within Phases 3 and 4 at the western end of the masterplan.
Our proposals
Our proposals for Phases A3 & A4 are aligned with the requirements set out in the outline planning permission and include the following:
- 200 new homes in total
- 20% Affordable Homes (40 in total)
- A mix of one to five-bedroom homes to be provided
- Primary vehicular/bus route located centrally between Little Money Road to the west and Colney Lane to the east
- Phases A3 & A4 will contain new Informal Leisure Space, including an equipped area of play in the centre of phase A4
- 1 acre of land on each phase set aside for potential affordable housing uplift
In accordance with the Local Authorities car parking guidelines, the following provisions shall apply:
- One bedroom homes – one allocated space (minimum)
- Two to three bedroom homes – two allocated spaces (minimum)
- Four+ bedroom homes – three allocated spaces (minimum)
- Affordable housing is to be provided in accordance with the S106 agreement entered into at the outline stage of the development
A3
Our proposals for Phases A3 & A4 are aligned with the requirements set out in the outline planning permission and include the following:
- 200 new homes in total
- 20% Affordable Homes (40 in total)
- A mix of one to five-bedroom homes to be provided
- Primary vehicular/bus route located centrally between Little Money Road to the west and Colney Lane to the east
- Phases A3 & A4 will contain new Informal Leisure Space, including an equipped area of play in the centre of phase A4
- 1 acre of land on each phase set aside for potential affordable housing uplift
A4
Our proposals for Phases A3 & A4 are aligned with the requirements set out in the outline planning permission and include the following:
- 200 new homes in total
- 20% Affordable Homes (40 in total)
- A mix of one to five-bedroom homes to be provided
- Primary vehicular/bus route located centrally between Little Money Road to the west and Colney Lane to the east
- Phases A3 & A4 will contain new Informal Leisure Space, including an equipped area of play in the centre of phase A4
- 1 acre of land on each phase set aside for potential affordable housing uplift
Landscaping
Green Corridors – A series of green links, comprising retained hedgerows and pockets of woodland providing both pedestrian and wildlife links through the development, with ‘Locally Equipped Areas of Play’ incorporated within
Local Greens – We will provide a mix of informal green spaces, an existing pond and also include occasional ‘Local Areas of Play’ within development Parcels
In accordance with the Ecological Masterplan, this development will look to work with the existing landscape and local biodiversity and shall enhance both at every opportunity, through sympathetic landscape design and ecological enhancement.
Existing landscape assets, such as mature trees, watercourses and hedgerows, have been identified and will be largely retained and ultimately used to inform and enhance the new development.
Our proposals
About the site
Hethersett itself is located along the B1172 Norwich Road on an elevated area of land, which falls away towards the north-west and south-east. The village has a wide range of facilities and services including a Village Hall/Community Centre.
The B1172 offers excellent access from the village on to the A11 and A47 Thickthorn junction, linking with Norwich City Centre and beyond. The B1172 also connects southwards to Wymondham.
Phases A3 & A4 currently occupy two areas of the masterplan, the first being to the south of the main spine road and the second situated to the west of the spine road.
Phase A3 is broadly due to be surrounded by Persimmon Homes’ phase B3 to the north, a neighbourhood centre and school site to the east, with landscaping and existing housing to the west and south.
Phase A4 has open fields to the north, west and south, with Persimmon Homes’ phase B4 to the east.
Phases A3 & A4 occupy a total net site area of 6.26 hectares at a current density of 35.6 dwellings per hectare, based upon the 200 new homes proposed in this phase.
Limitations in proposed storey heights and internal densities are stipulated through a suite of parameter plans which accompanied the masterplan, all of which look to limit the impact of the development on the wider site area and context. Two storey buildings are to be situated on external site boundaries, with both storey heights and densities increasing towards the centre of each phase.
Phases A3 & A4 feature numerous open spaces, including several formal local areas of play and informal recreation areas.
Community benefits
We will be providing a number of financial contributions towards the local community under the terms of the Section 106 agreement for this development, including the following:
- 40 new homes allocated for Affordable Housing
- Land for a new Neighbourhood Centre, that may house shops, small business units and other community facilities
- Formal and informal recreational space
- Equipped areas of play
- July 2013 – Outline planning permission granted for the overall site
- December 2015 – Reserved Matters approval granted for Phase A1-A, by Talyor Wimpey
- February 2016 – Reserved Matters consent for Phase B1-A, by Persimmon Homes
- May 2017 – Reserved Matter approval granted for Phase A1-B, by Taylor Wimpey
- November 2017 – Reserved Matters approval granted for Phase B1-B, by Persimmon
- February 2019 – Reserved Matters approval granted for Phase A2, by Taylor Wimpey
- October 2019 - Reserved Matters approval granted for Phase B2, by Persimmon Homes
- 14th May - 4th June - Taylor Wimpey ran a community consultation event related to plans for Phases A3 & A4
- Summer 2021 - Reserved Matters application for Phases A3 & A4 expected to be submitted
- Autumn 2021 - A decision on Reserved matters application for Phases A3 & A4 expected
- Reserved Matters permission for Phase A3 & A4 granted on 11th February
Learn more
Why choose us?
We're one of the UK's largest homebuilders. Find out why to choose us for your new home.
Ways to buy
Help with buying your new home
Explore the ways we can help get your home buying journey moving.
Why choose us
Award winning homes
We're proud to have been awarded 5 stars for customer satisfaction by the Home Builders Federation.
