Learn more about our emerging proposals in New Marske
We are preparing an outline planning application for up to 300 new homes on land north of Longbeck Lane, New Marske.
The development will provide a variety of new homes ranging from two- to five-bedroom homes, including up to 15% provided as affordable housing.
We held a public exhibition event at the New Marske Methodist Church, Gurney Street, New Marske, TS11 on Wednesday 14th May 2025 to seek feedback from the local community. A copy of the exhibition boards displayed at the event can be downloaded here.
The consultation period ended at midnight on Wednesday 28th May 2025 and all feedback received will shape our planning application, which we intend to submit to Redcar and Cleveland Borough Council in July 2025.
If you’re a local resident, you can find out more about our proposals and complete our feedback form on this web page.
If you have any questions about our plans you can email the project team on longbeck-lane@taylorwimpey-pr.co.uk
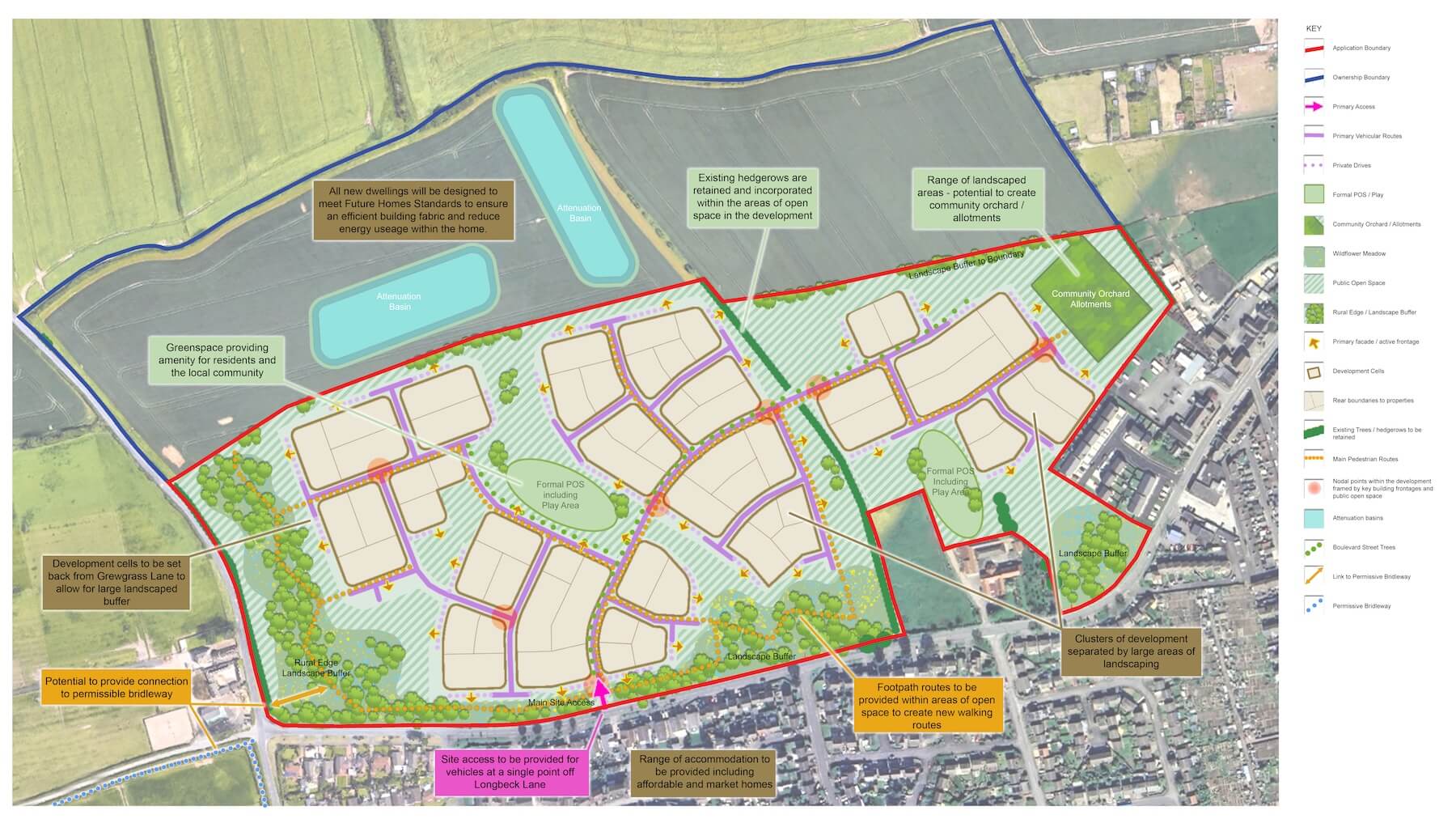
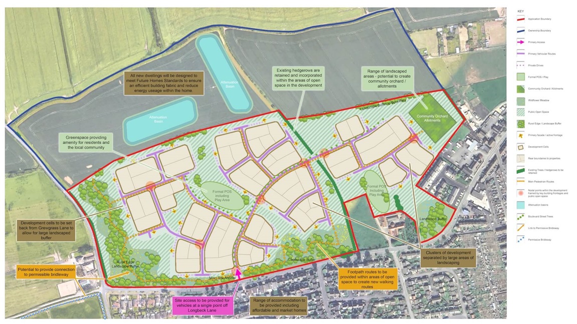
Development Map
Site Plan
Ecology
Our masterplan proposals seek to create a variety of habitats and a network of open spaces, as well as retaining existing features including boundary hedges, which will help to form the new site access and internal spine road. Alongside these existing hedges, our proposals include new tree and hedgerow planting with potential for a community orchard and allotment.
The landscape strategy also includes areas of ecology and wildlife and children’s play areas. Areas of open space will incorporate bug hotels, bee hives, trim trail play equipment, and bird and bat boxes. Natural planting will help to make the edges of the development more informal whilst enhancing the site’s ecological value.
Character
As part of our development process, we conduct a thorough assessment of the site ahead of the design stage. This assessment helps us to evaluate the suitability of the site, and the constraints and opportunities that will influence the design process.
The site is currently used as agricultural land, and following our analysis of the site, we’ve identified the following characteristics, constraints, and opportunities:
- We will seek to retain the existing boundary and field hedgerows wherever possible
- We will incorporate a standoff to allow for landscape planting along Longbeck Lane, Grewgrass Lane, and the northern edge of the site
- A minimum of 25m standoff along Grewgrass Lane will provide suitable separation between the new development and the listed building
- There will be a single point of access off Longbeck Lane
- Existing drainage runs and easements will be retained
- Our proposals will avoid high and medium-risk surface water flooding areas
- There is opportunity to create a network of open spaces that will incorporate formal landscaping, play areas, and natural planting
- There is a chance to enhance the site’s ecology through a range of landscaping in character areas
- There’s potential to connect to the permissible bridleway to the west
Our approach features
Community benefits
Building the homes
During the build stage, we anticipate that 40 temporary construction jobs could be created per year of building. We also estimate that 30 indirect/induced jobs could be created and supported in the supply chain per year of building.
The expected Gross Value Added (GVA) per year from this direct and indirect employment is £1.9 million.
Once people move in
In total, we expect residents of the new development to spend £2 million per year.
Additional local authority income
We estimate that the new development will contribute £515,000 in additional Council Tax per year.
New Homes Bonus payments
We anticipate a grant of £180,000 to be paid to the Cleveland Borough Council by the Government over six years.
Open space
Community benefits features
Learn more
Why choose us?
We're one of the UK's largest homebuilders. Find out why to choose us for your new home.
Ways to buy
Help with buying your new home
Explore the ways we can help get your home buying journey moving.
Why choose us
Award winning homes
We're proud to have been awarded 5 stars for customer satisfaction by the Home Builders Federation.
