Learn about our plans for the next phase of Chilton Woods
We are preparing a reserved matters planning application for the fourth phase of residential development at our Westland Heath development in Sudbury, known locally as Chilton Woods.
Once complete, the wider development will consist of 1,150 new homes, including affordable homes for rent or Shared Ownership, as well as land for a new primary school with pre-school facilities on the site, a village centre with new shops and community hall.
This specific phase will comprise 271 homes, with a mix of one to two-bedroom apartments and one to five-bedroom houses. There will also be significant areas of green open space to connect with the wider development.
It is important that we listen to the views of the local community while preparing our proposal. We held an online public consultation through this website from 11th to 27th August. We are grateful to all those who submitted their feedback, which is now being reviewed by the design team.
People will have a further opportunity to comment through the statutory consultation process once our application is submitted to Babergh District Council in the coming weeks.
About the development
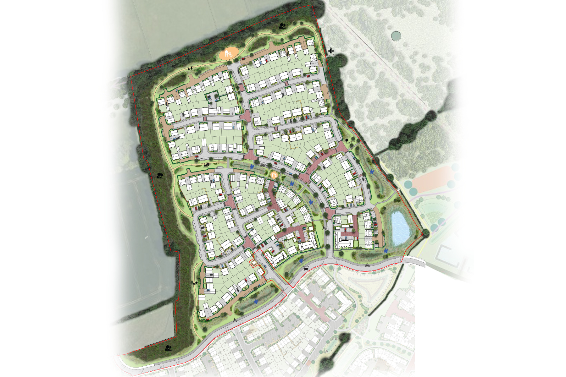
Masterplan
The layout will follow the structure set out in the approved Design Code, continuing the approach used in earlier phases to create a well connected, walkable neighbourhood.
A planned attractive community woodland will wrap around the edges of phase four, to the north and west, providing a pleasant green backdrop to the proposed new homes.
Street scenes
Many of the new homes in phase four, including three 2.5 storey apartment blocks, will look out towards the greenway open space and spine road to the west to create focal features in prominent locations.
Key buildings will feature distinctive design elements such as dormer windows, chimneys, brick detailing, coloured render and decorated gables.
Homes proposed
This phase will be a natural continuation of development from the previous phases, offering a mix of housing types, from one and two bedroom apartments to two bedroom coach houses, as well as two, three, four and five bedroom homes.
The proposed homes will all be either two or two-and-a-half storeys across the site, in line with the 10.8m height threshold which was set by the Design Code.
Future phases
Our overall proposal includes 1,150 new homes, a quarter of which will be designated as ‘affordable’, as well as a range of community facilities including a village centre, community hall, sports pitches and large areas of green space, including community woodland.
We will not be delivering the employment land to the west.
About our proposals
Connectivity
In phase four specifically, the existing PROW (public right of Way) will be retained and enhanced with planting, while new pedestrian links will be added to nearby play spaces.
Exestablished cycle routes in phase one, phase three and Reynolds Way will also be linked to the proposed phase.
Drainage
SuDS help to prevent water pollution, reduce flow velocities and reduce the risk of flooding, while supporting our biodiversity and net gain requirements.
In relation to the proposed fourth phase of the development, a surface water attenuation basin will be located in the south-east of the site, alongside further sustainable drainage measures,
Ecology
Ecological surveys have been carried out across the site to help identify local habitats and protected species. These findings have helped shape our approach, which includes safeguarding existing ecological features and introducing new habitats to support our commitment to biodiversity.
Phase four will include features such as bird and bat boxes (including swift S-boxes), bee bricks and hedgehog highways. We’ll also be retaining existing trees and hedgerows wherever possible. Planting across the phase will prioritise native and locally sourced species, contributing to wider green corridors already being established throughout the development.
Swales and ponds will limit water runoff, improve water quality and encourage the development of wildlife friendly environments.
Our approach
Previous planning applications
Outline planning permission for the wider development was granted in 2018, with reserved matters approval for the first phase of 200 homes granted in March 2021.
This was followed by approval for phase two in July 2022 and phase three in March 2024, each bringing forward new homes and green infrastructure which reflect the overall Design Code.
Previous consultations and feedback
History of the site
Amenities & facilities
Economic benefits
Open Space
Phase four contains substantial areas of high-quality open spaces. Future residents will also be in close proximity to the main village green and will benefit from avenues connecting to the village green and other amenities to the north and south of the parcel.
These spaces will provide residents with the opportunity to walk, cycle and spend time outdoors, while also supporting biodiversity through planting and green corridors that link into the wider Chilton Woods site.
Community benefits features
We’re committed to supporting the community in and around our development by working with schools, community groups and individuals.
We’ve supported a range of causes around the area, from schools and sports clubs to foodbanks.
Earlier this year we donated £300 to Tudor Primary School to mark World Book Day. To bring the donation to life, a group of pupils from the school accompanied by our staff to Waterstones in Sudbury, where they were given the opportunity to pick out books of their choice. The pupils’ chosen books are now part of the school’s library, enriching the children's reading experiences and encouraging further engagement with literature.

In line with the vision for Chilton Woods, Phase four will include a number of sustainable design features to help minimise its environmental impact.
All new homes will be fitted with electric vehicle charging points, with parking either on-plot or nearby to make them easily accessible. For apartments, charging will be available within the communal parking courtyard.
A centralised air-source heat hub will provide heating for every home in this phase, supporting a move away from traditional gas systems and helping to lower carbon emissions.
Learn more
Why choose us?
We're one of the UK's largest homebuilders. Find out why to choose us for your new home.
Ways to buy
Help with buying your new home
Explore the ways we can help get your home buying journey moving.
Why choose us
Award winning homes
We're proud to have been awarded 5 stars for customer satisfaction by the Home Builders Federation.
