An exciting new community coming to land off Minsmere Rd, Keynsham.
Minsmere Green is an exciting new community coming to land east of Minsmere Road, Keynsham
Learn about our plans for an exciting new community in Keynsham.
We have received an outline planning permission for 70 homes at Minsmere Road, Keynsham, on the Chandag Estate in Keynsham.
Our plans include a mix of one, two, three, four and five bedroom properties. To support the council’s ambition for more affordable housing, 30% of the homes will be affordable homes including shared ownership and affordable rent. This will provide an excellent choice for all buyers, from working professionals and young couples to growing families or downsizers.
Our plans for the site will deliver a high-quality scheme and will provide much-needed new homes in Keynsham.
Outline planning permission has been agreed in May 2023 and a S106 agreement has been finalised with Bath and North East Somerset Council. Our Reserved Matters application will comply with the S106 Agreement. We expect a decision on our Reserved Matters application late Spring 2025
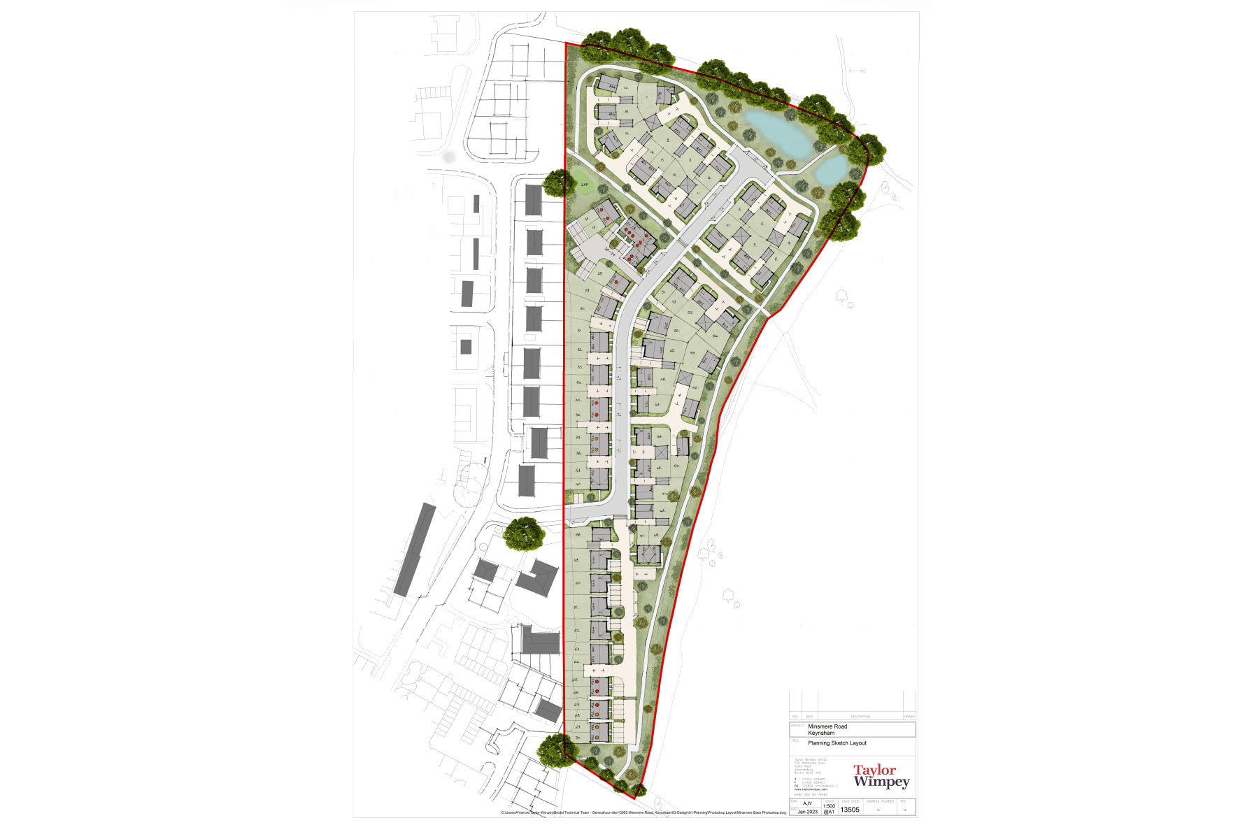
About the development
Location of proposed development
Development Map Feature
Street scenes
Green Infrastructure Parameter Plan
2025 Future Homes Standard
Illustrative masterplan
Development Map Category features
Following the resolution to grant received at committee, we submitted our Reserved Matters planning application last Summer which was refused by the Local Planning Authority. We submitted a new Reserved Matters planning application in late June 2024 and have worked closely with Bath and North East Somerset Council to ensure it addresses the points of refusal on our previous application and any recent feedback from the local community. We expect a decision on this application late Spring 2025. About the site About the site The site is located to the east of Keynsham and adjacent to Minsmere Road. It lies in close proximity to Wellsway School, Chandag Junior School and Two Rivers Primary School.
Local roads and the B3116 provide links to Keynsham Town Centre and the National Highway Network (A4 Bath Road / Keynsham Bypass). The A4 is the main road between Bristol and Bath.
Key elements of the proposed development are as follows:
• The scheme has been designed to work within the constraints and opportunities of the site to create a sustainable development
• Site area of 3.31ha for up to 70 new high-quality, energy efficient homes
• A mix of property types and sizes including 1-2 bedroom apartments and 2-5 bedroom homes
• Provision of affordable housing (30%) including shared ownership and affordable rent
• Homes fronting on to the retained and improved existing Public Right of Way (PRoW) from Windrush Road to Manor Road Community Woodland
• New pedestrian and cycle access from north-eastern boundary leading to existing residential development and primary school to the north
• New recreational woodland edge walk within 12m wildlife buffer along eastern site boundary
• Maximum building height of 2.5 storeys
• Children's local area of play (LAP) and trim trail along section of the PRoW
• Drainage infrastructure includes wet attenuation pond in north-east corner which also provides wildlife habitat
• Retention of existing trees and vegetation wherever possible
The Character proposals of this quaint development offer a simple and quality aesthetic using the below proposed materials:
- High quality grey bricks, red bricks and use of reconstituted stone
- Anthracite grey vertical weatherboarding
- Flat black and red roof tiles
- Large grey aperture windows
- Grey windows, doors, fascias and canopy features
The site is predominantly semi-improved grassland with scattered shrub and tall ruderal vegetation on the western boundary, semi-mature to mature treeline on the northern boundary and the Local Nature Reserve to the east.
What did our ecological surveys find?
• Confirmed that Great Crested Newts and reptiles are absent from the local area
• Site has potential to support Dormice
• Nesting birds present in scrub habitat potential impact
• 10 bat species recorded to be using the site with the two rarer species using eastern and northern boundaries
• No evidence of badger setts recorded on site – however green infrastructure proposed within buffer zones will ensure foraging habitat and that habitat connectivity is retained for badgers
How will we mitigate the ecological impact?
• 12-metre ecology buffer planted with wildflower grassland to be provided on eastern site boundary with no lightspill greater than 0.5 lux due to existing bat habitat
• Off-site habitat enhancements within Keynsham to address 10% Biodiversity Net Gain (BNG) requirement
• Wet attenuation pond within north-east corner designed to create wildlife habitats
• Over 50 bird and bat boxes integrated into the building fabric and also within trees and hedgerows where possible
• 20 bee bricks integrated into the building fabric
• Additional hedgerow and tree planting
• Wildlife routes and hedgehog gaps within fencing
• Installation of bug hotels within public open space
• Interpretation/information boards to highlight ecology sensitivities of Manor Road Community Woodland
• Beekeeping hives within Public Open Space, dependant on local community interest
Our proposals aim to limit traffic impact as far as reasonably practicable and encourages the use of local and sustainable modes of transport. The proposals also aim to provide a permeable, safe and convenient network of pedestrian and cycle routes, integrating with existing services and facilities in Keynsham.
What access is proposed?
- Proposed vehicle access from Minsmere Road
- Proposed vehicle access will be carefully designed and constructed to protect existing Maple tree adjacent to entrance
- Retaining and improving PRoW through centre of site from east to west leading from Windrush Road to Manor Road Local Nature Reserve
- New footpath/cycleway proposed leading north to existing residential development Hygge Park
- New footpath along the eastern boundary linking to existing footpath on southern site boundary
Other provisions:
- Development to include 20mph speed limit to create safe environment for residents, cyclists and pedestrians
- Travel plan to encourage sustainable methods of transport for residents
- Significant S106 Agreement contributions to improve local sustainable transport
- Improvement works to bus stops on Minsmere Road, Chandag Road, Limekilns Close and Lambourne Road
Mid March 2023 – Pre-application discussions with Bath and North East Somerset Council
July 2023 – Submission of Reserved Matters Planning Application
May 2024 – Reserved Matters Planning Application Refused by Bath and North East Somerset Council
Late June 2024 – Submission of new Reserved Matters Planning Application
Spring 2025 – Target for Reserved Matters Planning Permission to be Granted by Bath and North East Somerset Council
Outline planning details can be found on Bath and North East Somerset Council’s website under planning reference 21/05471/OUT.
Reserved Matters planning details can be found from the Council website under planning reference 24/02417/RES
These will be in the form of a Section 106 Agreement and Community Infrastructure Levy (CIL).
S106 Contributions (circa. £2,326,600)
• Fire Hydrant Contribution
• Targeted Recruitment and Training Contribution
• Primary School Education Contributions
• Sustainable Transport Infrastructure Contributions
• On Site Public Right of Way Improvements
• Travel Plan Monitoring
• S106 Monitoring Fee
Approximately £455,000 will also be paid to Bath and North East Somerset Council by way of a Community Infrastructure Levy. The council will decide how this money is spent to improve existing infrastructure and facilities in the local area.
Learn more
Why choose us?
We're one of the UK's largest homebuilders. Find out why to choose us for your new home.
Ways to buy
Help with buying your new home
Explore the ways we can help get your home buying journey moving.
Why choose us
Award winning homes
We're proud to have been awarded 5 stars for customer satisfaction by the Home Builders Federation.
